サービス実績
創業2006年以来積み重ねてきた経験があります



様々な業界のお客様にご利用いただいています【弊社取引先企業内訳】





全国各地からご発注いただいています

図面トレース納品仕様/料金目安一覧
納品仕様
レイヤー振分け
◆下記図面に当たる場合、各基準にレイヤー振分け可能です
- 国土交通省(土木/電気設備/機械)
- NEXCO
- JS
◆その他ご要望があればご相談ください
ex.建築(日本語)
納品可能なファイル形式(拡張子)
- 基本:DWG
- 対応可能形式:JW、DXF、VWX、PDF
※その他形式はご相談ください
取り扱い可能なCADソフト(拡張子)
- 基本:Auto CAD(DWG、DXF)
- Vectorworks(VWX)
- Jw_cad(JWW、JWC)
- SXF(SFC、P21、SFZ、P2Z)
- V-nas(BFO)
- CADWe’ll土木(TFV、DVV、DVM)
- BV FILE(BVF)
- 図脳RAPID(ZRD、ZFD、ZSD、ZSDX)
図面トレース料金目安

その他諸経費かかりません。※合わせてCAD編集、CAD変換に当たる作業が発生する場合は別途見積となります。
注1)上記はあくまで料金目安です。実際の金額はお見積書でご確認ください。
注2)作業着手後、お客様都合による修正や変更が発生した場合には、別途費用が必要です。
価格内に含む作業内容
- 弊社不備による修正※
- ダブルチェック(作業者+作業者以外の者)
※原則一週間以内に検品→ご連絡をお願いしております。1週間以上経過してからのご連絡による修正作業は別途費用が掛かります。お客様都合で検品に1週間以上時間を要する場合には事前にご相談ください。
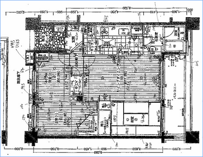
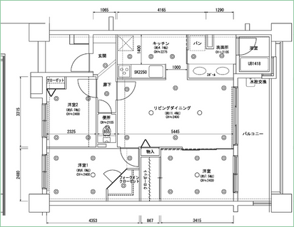
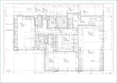
図面サンプル・納期
トレース金額:15,000円 納期目安:1枚の場合3営業日 10枚の場合5~7日
トレース前 支給図面

トレース後 図面

トレース金額:4,000円 納期目安:1枚の場合3営業日 10枚の場合5~7日
トレース前 支給図面

トレース後 図面

トレース金額:15,000円 納期目安:1枚の場合3営業日 10枚の場合5~7日
トレース前 支給図面

トレース後 図面

トレース金額:6,000~8,000円 ※ 納期目安:1枚の場合3営業日 10枚の場合5~7日
※帯を反映するかどうかにより変わります
トレース前 支給図面

トレース後 図面

トレース金額:10,000円 納期目安:1枚の場合3営業日 10枚の場合1週間程度
トレース前 支給図面

トレース後 図面

トレース金額:15,000円 納期目安:1枚の場合4営業日 10枚の場合10日程度
トレース前 支給図面

トレース後 図面

トレース金額:15,000円 納期目安:1枚の場合5営業日 10枚の場合2週間程度
トレース前 支給図面

トレース後 図面

図面データ(JPEG、TIFF、PDF等)を送って見積を確認してみませんか。
細かい仕様や編集内容が決まっていれば、対応可能か合わせて確認してみませんか?
お見積フォーム
この度は弊社サービスにご興味を持っていただきありがとうございます。
サービスについてのお見積は下記よりお気軽にご連絡ください。
電話
お電話での問合わせは、下記番号までお願いいたします。(スマートフォンの方は電話番号のタップでお電話がつながります)
052-739-6832
受付時間:9:00-17:00(土日祝日は除く)
